- Ilość rury na 1 m² waha się od ok. 4,4 m (rozstaw 25 cm) do 10 m (rozstaw 10 cm), zależnie od potrzeb cieplnych i typu pomieszczenia.
- Kluczowe czynniki wpływające na ilość rur to rozstaw, rodzaj pomieszczenia, izolacja budynku, wykończenie podłogi oraz źródło ciepła.
- Obliczenia wymagają zastosowania wzoru: Powierzchnia / Rozstaw, a następnie doliczenia rur dojazdowych do rozdzielacza (ok. 2 m na pętlę) oraz 5-10% zapasu materiału.
- Pojedyncza pętla grzewcza nie powinna przekraczać 80-100 metrów, aby zapewnić równomierne grzanie i uniknąć problemów z hydrauliką.
- Standardowa średnica rur do ogrzewania podłogowego to 16 mm, a najczęściej stosowane materiały to PEX lub PE-RT z barierą antydyfuzyjną.
- Częste błędy to pomijanie dojazdów, zbyt długie pętle, brak zapasu oraz bezkrytyczne poleganie na kalkulatorach online bez weryfikacji.
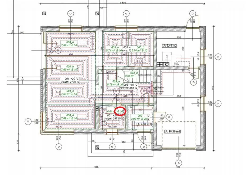
Dokładne obliczenie długości rur do ogrzewania podłogowego to nie tylko kwestia techniczna, ale przede wszystkim ekonomiczna i komfortowa. Po pierwsze, wpływa to bezpośrednio na koszty zbyt duża ilość zakupionych rur to niepotrzebne wydatki, a zbyt mała oznacza przestoje w pracy i konieczność dokupowania materiału, co często wiąże się z wyższą ceną i dodatkowymi kosztami transportu. Po drugie, ma to ogromne znaczenie dla komfortu źle zaprojektowana instalacja, z niewłaściwą ilością rur lub ich nierównomiernym rozłożeniem, może skutkować zimnymi strefami na podłodze, co całkowicie niweczy ideę ogrzewania podłogowego. Wreszcie, przekłada się to na wydajność i rachunki za ogrzewanie; optymalna długość pętli i odpowiedni rozstaw rur zapewniają efektywne przekazywanie ciepła, co w dłuższej perspektywie oznacza niższe zużycie energii i mniejsze opłaty.

Ile rur na ogrzewanie podłogowe? Kluczowe czynniki wpływające na ich ilość
Z mojego doświadczenia wynika, że ilość rur potrzebnych do ogrzewania podłogowego nie jest stała i zależy od wielu zmiennych. Zrozumienie tych czynników to podstawa do wykonania poprawnych obliczeń i zaprojektowania efektywnego systemu. Przyjrzyjmy się im bliżej.
Rozstaw rur: Najważniejsza decyzja wpływająca na gęstość instalacji
Rozstaw rur to bez wątpienia najważniejszy czynnik wpływający na ogólną ilość potrzebnego materiału i gęstość instalacji. Im mniejszy rozstaw, tym więcej rur na metr kwadratowy i tym bardziej równomiernie i intensywniej podłoga będzie oddawać ciepło. Typowe rozstawy to 10 cm, 15 cm, 20 cm, a czasem nawet 25 cm. Wybór odpowiedniego rozstawu zależy od zapotrzebowania na ciepło w danym pomieszczeniu i temperatury zasilania.
Rodzaj pomieszczenia: Dlaczego w łazience potrzebujesz więcej rur niż w sypialni?
Zapotrzebowanie na ciepło różni się w zależności od funkcji pomieszczenia. W łazienkach, gdzie oczekujemy wyższej temperatury komfortu (często 24-26°C) i gdzie występują większe straty ciepła (np. przez wentylację), zazwyczaj stosujemy gęstszy rozstaw rur, np. co 10 cm. Podobnie w strefach brzegowych, czyli pasach o szerokości około 1 metra wzdłuż ścian zewnętrznych i pod oknami, gdzie straty ciepła są największe, również zalecam zagęszczenie rur. W salonach, sypialniach czy korytarzach, gdzie wystarczy temperatura 20-22°C, możemy zastosować rzadszy rozstaw, np. co 15 cm, a nawet co 20 cm.
Izolacja budynku i podłogi: Jak dobra termoizolacja pozwala zaoszczędzić na materiale?
Jakość izolacji termicznej budynku ma ogromne znaczenie. W nowoczesnych, dobrze izolowanych domach energooszczędnych zapotrzebowanie na ciepło jest znacznie niższe, co pozwala na zastosowanie rzadszego rozstawu rur (np. co 15-20 cm) i tym samym zmniejszenie ilości potrzebnego materiału. Kluczowa jest również izolacja pod posadzką (np. odpowiednia grubość styropianu), która zapobiega ucieczce ciepła w dół, zwiększając efektywność systemu i pozwalając na optymalizację gęstości rur.
Rodzaj wykończenia podłogi: Płytki, panele czy drewno co to zmienia w obliczeniach?
Materiał, którym wykończysz podłogę, ma bezpośredni wpływ na to, jak efektywnie ciepło z rur będzie przenikać do pomieszczenia. Płytki ceramiczne i kamień charakteryzują się bardzo dobrym przewodnictwem cieplnym, co oznacza, że ciepło łatwo przez nie przechodzi. W ich przypadku możemy pozwolić sobie na nieco rzadszy rozstaw rur. Natomiast drewno, panele podłogowe czy grube wykładziny mają wyższy opór cieplny. Aby skutecznie ogrzać pomieszczenie, konieczne może być zastosowanie gęstszego rozstawu rur, aby skompensować ten opór i zapewnić odpowiednią temperaturę na powierzchni podłogi.
Źródło ciepła: Jak pompa ciepła lub kocioł gazowy wpływają na zalecany rozstaw?
Rodzaj źródła ciepła, które zasila ogrzewanie podłogowe, również ma znaczenie. Pompy ciepła, aby pracować z najwyższą efektywnością, wymagają niskiej temperatury zasilania (zazwyczaj 30-35°C). W takim przypadku, aby osiągnąć odpowiednią moc grzewczą, konieczne jest zastosowanie gęstszego rozstawu rur (najczęściej 10-15 cm). Kotły kondensacyjne mogą pracować z nieco wyższą temperaturą zasilania, co daje większą elastyczność w doborze rozstawu, choć i w ich przypadku niskie temperatury zasilania są korzystne dla efektywności.
Ile rur na metr kwadratowy? Praktyczne wyliczenia dla różnych rozstawów
Przejdźmy do konkretów. Poniżej przedstawiam przybliżone ilości rur na metr kwadratowy dla najpopularniejszych rozstawów. Pamiętaj, że są to wartości orientacyjne, które stanowią punkt wyjścia do dalszych obliczeń.
Gęsty rozstaw (co 10 cm): Kiedy jest niezbędny i ile rury zużyjesz?
Rozstaw rur co 10 cm to najgęstszy układ, który stosuję w miejscach o wysokim zapotrzebowaniu na ciepło, takich jak łazienki, strefy brzegowe przy dużych przeszkleniach czy w budynkach z pompą ciepła, gdzie zależy nam na jak najniższej temperaturze zasilania. Przy tym rozstawie na 1 m² powierzchni grzewczej zużyjesz około 10 metrów bieżących rury.
Uniwersalny rozstaw (co 15 cm): Złoty standard dla większości pomieszczeń
Rozstaw co 15 cm to moim zdaniem złoty standard i najczęściej stosowany wariant w większości pomieszczeń mieszkalnych, takich jak salony, sypialnie, kuchnie czy korytarze. Zapewnia on dobry kompromis między komfortem cieplnym a zużyciem materiału. Na 1 m² powierzchni grzewczej przy tym rozstawie potrzebujesz około 6,7-7,3 metra bieżącego rury (różnica wynika z dokładności wzorów i sposobu ułożenia).
Ekonomiczny rozstaw (co 20 cm i więcej): Gdzie można bezpiecznie ułożyć rury rzadziej?
Rozstaw co 20 cm lub nawet 25 cm jest możliwy do zastosowania w pomieszczeniach o bardzo niskim zapotrzebowaniu na ciepło, np. w domach pasywnych, bardzo dobrze izolowanych budynkach, lub w miejscach, gdzie ogrzewanie podłogowe ma pełnić funkcję wspomagającą. Przy rozstawie co 20 cm zużyjesz około 5 metrów bieżących rury na 1 m², natomiast przy rozstawie co 25 cm będzie to około 4,4 metra bieżącego rury na 1 m². Zawsze jednak zalecam ostrożność i dokładne sprawdzenie bilansu cieplnego, zanim zdecydujesz się na tak rzadki rozstaw.
Tabela zużycia: Szybkie porównanie ilości rury na m² dla różnych wariantów
| Rozstaw rur | Ilość rury na 1 m² (mb) |
|---|---|
| 10 cm | ~10,0 mb |
| 15 cm | ~6,7 - 7,3 mb |
| 20 cm | ~5,0 mb |
| 25 cm | ~4,4 mb |
Obliczanie rur na ogrzewanie podłogowe praktyczny poradnik krok po kroku
Teraz, gdy znamy już kluczowe czynniki, przejdźmy do praktyki. Poniżej przedstawiam prosty, ale skuteczny sposób na samodzielne obliczenie długości rur do ogrzewania podłogowego.
Krok 1: Zmierz dokładną powierzchnię grzewczą pomieszczenia
Zacznij od precyzyjnego zmierzenia powierzchni każdego pomieszczenia, w którym planujesz ogrzewanie podłogowe. Pamiętaj, aby odjąć powierzchnię, pod którą nie będą układane rury, np. pod stałą zabudową kuchenną, wanną, brodzikiem czy szafami wnękowymi. Liczy się tylko efektywna powierzchnia, z której ciepło będzie oddawane.
Krok 2: Zastosuj prosty wzór do obliczenia długości pętli
Po zmierzeniu powierzchni, użyj podstawowego wzoru:
Ilość rury [m] = Powierzchnia [m²] / Rozstaw rur [m]
Przykład: Jeśli masz pomieszczenie o powierzchni 15 m² i planujesz rozstaw rur co 0,15 m (15 cm), obliczenie wygląda następująco: 15 m² / 0,15 m = 100 metrów rury. Pamiętaj, aby rozstaw podawać w metrach, a nie w centymetrach!
Krok 3: Nie zapomnij o dojściach do rozdzielacza ukryty koszt instalacji
To jeden z najczęściej pomijanych elementów, który może znacząco wpłynąć na niedoszacowanie materiału. Rury muszą dotrzeć od rozdzielacza do każdej pętli grzewczej i z powrotem. Te odcinki nie grzeją podłogi, ale są niezbędne. Zazwyczaj na każdą pętlę doliczam około 2 metry bieżące rury na dojście i powrót. Jeśli rozdzielacz jest oddalony, ta wartość może być większa.
Krok 4: Dodaj niezbędny zapas materiału (5-10%) dlaczego to konieczne?
Zawsze, ale to zawsze, zalecam doliczenie zapasu materiału. W trakcie montażu mogą pojawić się nieprzewidziane przeszkody, konieczność docinania, drobne błędy czy modyfikacje układu. Dodanie 5-10% zapasu do całkowitej obliczonej długości rur to rozsądne podejście, które pozwoli uniknąć nerwów i kosztownych przestojów na budowie.
Przykład praktyczny: Obliczamy długość rur dla salonu o powierzchni 30 m²
Załóżmy, że mamy salon o powierzchni 30 m², chcemy zastosować rozstaw co 15 cm i planujemy podzielić go na dwie pętle grzewcze, aby zachować optymalną długość każdej z nich.
- Powierzchnia jednej pętli: 30 m² / 2 pętle = 15 m² na pętlę.
- Długość rury na pętlę (bez dojazdów): 15 m² / 0,15 m (rozstaw) = 100 metrów.
- Dojścia do rozdzielacza: Dla każdej pętli doliczamy około 2 metry (przyjmijmy 2 metry na dojście i 2 metry na powrót, czyli 4 metry na pętlę). W sumie: 2 pętle * 4 m/pętlę = 8 metrów.
- Całkowita długość rur (przed zapasem): (100 m * 2 pętle) + 8 m (dojścia) = 208 metrów.
- Zapas materiału (np. 10%): 208 m * 0,10 = 20,8 metra.
- Łączna ilość rury do zakupu: 208 m + 20,8 m = około 229 metrów bieżących.
Jak widzisz, precyzyjne obliczenia są kluczowe, a pominięcie dojazdów czy zapasu mogłoby skutkować brakami na budowie.

Rury do ogrzewania podłogowego średnica, materiał i maksymalna długość pętli
Wybór odpowiednich rur to kolejny element, który ma wpływ na trwałość i efektywność Twojej instalacji. Nie chodzi tylko o ilość, ale i o jakość oraz parametry techniczne.
Jaka średnica rury jest najlepsza? Dlaczego standardowe 16 mm to najbezpieczniejszy wybór?
Dla domów jednorodzinnych i większości zastosowań, rura o średnicy 16 mm (najczęściej 16x2 mm, czyli 16 mm średnicy zewnętrznej i 2 mm grubości ścianki) jest standardowym i najbezpieczniejszym wyborem. Zapewnia ona optymalny przepływ wody, odpowiednie oddawanie ciepła i łatwość układania. Rury o większej średnicy (np. 20 mm) stosuje się rzadziej, głównie na bardzo dużych powierzchniach lub w specyficznych instalacjach przemysłowych, gdzie potrzebne są większe przepływy. Mniejsze średnice (np. 14 mm) mogą być używane w miejscach o ograniczonej przestrzeni, ale wiążą się z większymi oporami hydraulicznymi i są mniej popularne.
Maksymalna długość pętli: Dlaczego nie można przekraczać 100 metrów?
To bardzo ważna zasada, której należy bezwzględnie przestrzegać. Pojedyncza pętla ogrzewania podłogowego nie powinna przekraczać 80-100 metrów bieżących. Przekroczenie tej długości prowadzi do kilku problemów:
- Zbyt duże opory hydrauliczne: Woda musi pokonać dłuższą drogę, co zwiększa opory i wymaga większej mocy pompy obiegowej.
- Spadki ciśnienia: Na końcu zbyt długiej pętli ciśnienie wody będzie niższe, co utrudni równomierne rozprowadzenie ciepła.
- Nierównomierne grzanie: Początek pętli będzie znacznie cieplejszy niż jej koniec, co skutkuje zimnymi strefami na podłodze i obniża komfort.
PEX czy PE-RT? Krótkie porównanie najpopularniejszych materiałów
Na rynku dominują dwa główne typy rur do ogrzewania podłogowego:
- PEX (polietylen sieciowany): Charakteryzuje się wysoką elastycznością, odpornością na wysoką temperaturę i ciśnienie. Proces sieciowania (usieciowania) poprawia jego właściwości mechaniczne i termiczne.
- PE-RT (polietylen o podwyższonej odporności termicznej): To nowszy materiał, który również oferuje dobrą elastyczność i odporność na temperaturę, bez konieczności sieciowania. Jest często łatwiejszy w układaniu.
Unikaj tych błędów przy obliczaniu rur do podłogówki!
Jako praktyk, widziałem wiele błędów, które można łatwo uniknąć. Pamiętaj o poniższych wskazówkach, aby Twoja instalacja działała bez zarzutu.
-
Błąd nr 1: Pomijanie długości rur dojazdowych do rozdzielacza
To chyba najczęstszy błąd. Wielu inwestorów i wykonawców zapomina, że rury muszą dotrzeć od rozdzielacza do każdej pętli i z powrotem. Te odcinki, choć nie grzeją podłogi, są niezbędne i muszą być uwzględnione w całkowitej ilości materiału. Ich pominięcie skutkuje niedoszacowaniem i koniecznością dokupowania rur w trakcie prac.
-
Błąd nr 2: Zbyt długie pętle grzewcze prowadzące do niedogrzania podłogi
Przekraczanie maksymalnej długości pętli (80-100 metrów) to prosta droga do problemów. Skutkuje to nierównomiernym grzaniem początek pętli będzie ciepły, a koniec zimny, co tworzy niekomfortowe strefy. Dodatkowo, zbyt długie pętle zwiększają opory hydrauliczne, obciążając pompę obiegową i zmniejszając efektywność całego systemu.
-
Błąd nr 3: Brak zapasu materiału i kosztowne przestoje w pracy
Nigdy nie kupuj rur "na styk". Zawsze dolicz 5-10% zapasu. Na budowie zawsze coś może pójść nie tak: rura może zostać uszkodzona, trzeba będzie ominąć nieprzewidzianą przeszkodę, czy zmienić delikatnie układ. Brak zapasu oznacza przerwę w pracy, oczekiwanie na dostawę brakującego materiału i często wyższe koszty zakupu mniejszych ilości.
-
Błąd nr 4: Poleganie wyłącznie na kalkulatorach online bez weryfikacji
Kalkulatory online są przydatnym narzędziem do wstępnych szacunków, ale nie zastąpią profesjonalnego projektu ani zdrowego rozsądku. Często bazują na uogólnionych danych i mogą nie uwzględniać specyfiki Twojego budynku (np. jakości izolacji, rodzaju wykończenia podłogi, lokalizacji rozdzielacza). Zawsze weryfikuj wyniki i dostosowuj je do konkretnych warunków.
Kiedy warto postawić na profesjonalny projekt ogrzewania podłogowego?
Choć samodzielne obliczenia są możliwe, w wielu przypadkach profesjonalny projekt instalacji ogrzewania podłogowego to najlepsza inwestycja. Z mojego doświadczenia wynika, że pozwala on uniknąć wielu problemów i zapewnia optymalne działanie systemu na lata.Co zyskujesz dzięki projektowi: Optymalizacja, bezpieczeństwo i spokój na lata
Decydując się na profesjonalny projekt, zyskujesz przede wszystkim optymalizację systemu pod kątem efektywności energetycznej i komfortu cieplnego. Projektant uwzględni bilans cieplny budynku, rodzaj źródła ciepła, materiały wykończeniowe i specyfikę każdego pomieszczenia, dobierając idealny rozstaw i długość pętli. To gwarantuje bezpieczeństwo instalacji, minimalizuje ryzyko błędów wykonawczych i zapewnia spokój na lata, wiedząc, że Twój system grzewczy działa optymalnie i ekonomicznie.
Przeczytaj również: Jak regulować ogrzewanie podłogowe? Komfort i oszczędności w domu
Kiedy prosty kalkulator wystarczy, a kiedy projekt jest absolutnie konieczny?
Prosty kalkulator i samodzielne szacunki mogą być wystarczające w bardzo prostych przypadkach np. w małych, dobrze izolowanych budynkach o standardowym układzie pomieszczeń i jednolitym zapotrzebowaniu na ciepło. Jednak w większości sytuacji, a zwłaszcza w:
- złożonych budynkach o nieregularnym kształcie,
- domach pasywnych lub energooszczędnych,
- instalacjach z pompami ciepła,
- obiektach o dużych powierzchniach,
- budynkach z różnymi strefami grzewczymi i zróżnicowanym zapotrzebowaniem na ciepło,
